Default sidemenu image
Search

Leave a Message

Thank you for your message. We will be in touch with you shortly.

Explore Our Properties

Property Description

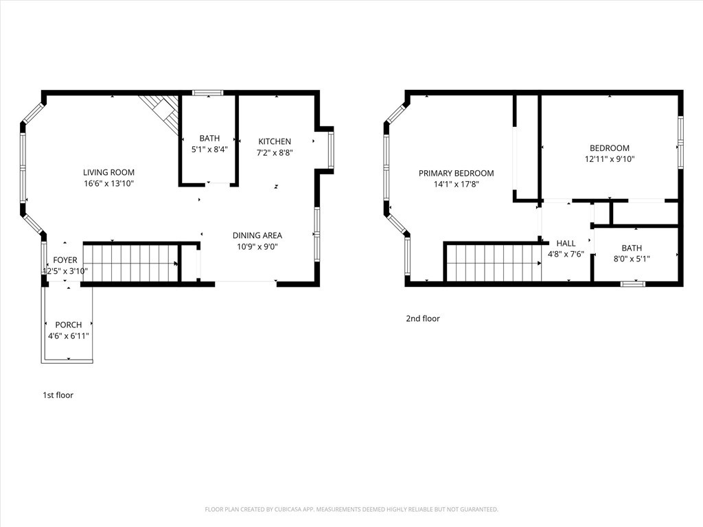
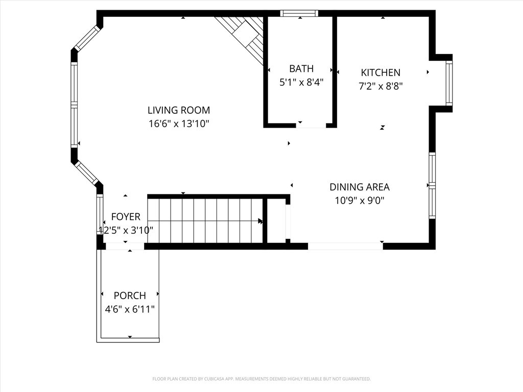
Charming and well-cared-for mountain retreat featuring a roof replaced in 2022 and a warm, inviting layout. Enter on the main level into the comfortable living room highlighted by a brick corner fireplace and an abundance of front windows that fill the space with natural light. The dining area offers built-in cabinetry, a ceiling fan, a storage/pantry closet, and sliding glass doors that lead directly to the deck, perfect for enjoying the peaceful mountain setting. This level also includes a convenient half bathroom combined with the laundry area.

The galley-style kitchen is equipped with a double wall oven, a separate range, dishwasher, microwave, and a garden window overlooking the backyard. Upstairs you'll find two bedrooms with vaulted ceilings that create an open, airy feel. The larger primary bedroom faces the front of the home and features multiple windows with a beautiful view, a ceiling fan, mirrored closet doors, and a built-in office nook. The second bedroom is situated toward the rear and also includes high ceilings, a ceiling fan, and mirrored closet doors. A full bathroom with tub/shower combo and a linen closet complete the upper level.

Outside, a storage shed sits at the end of the deck, ideal for firewood or outdoor gear. The buildup area offers additional storage space, a utility sink, and a whole-house generator with transfer switch for added peace of mind. The property also includes private off-street parking for at least two vehicles.

Conveniently located just off Highway 18 (Rim of the World Hwy) and within walking distance to local shops and services. Easy access to Highway 330, less than 6 miles to Snow Valley, approximately 13 miles to Lake Arrowhead, and about 15 miles to Big Bear Lake -- making this a great home base for year-round mountain living and recreation.

Overview

Property Status
For Sale
Lot Size
4,557 Sq.Ft.
MLS ID
IG26038552
Property Type
Residential
Year Built
1992

Features & Amenities

Neighborhood
San Bernardino County
View Description
Mountain(s), Neighborhood
Stories
2
Water Source
Public
Utilites
Electricity Connected, Natural Gas Connected, Sewer Connected, Water Connected
Pool
None
Roof
Composition
Lot Features
Sloped Up, Trees
Parking
Asphalt, Driveway, Driveway Up Slope From Street, Off Street
Heat Type
Central, Fireplace(s)
Air Conditioning
None
Laundry Room
Washer Hookup, Inside
Fireplace
Family Room
Appliances
Double Oven, Dishwasher, Disposal, Gas Oven, Gas Range, Gas Water Heater, Range Hood, Water Heater, Washer
Other Interior Features
Ceiling Fan(s), Cathedral Ceiling(s), Separate/Formal Dining Room, High Ceilings, Laminate Counters, Unfurnished, All Bedrooms Up, Galley Kitchen
Sewer
Public Sewer
Security Features
Carbon Monoxide Detector(s), Smoke Detector(s)
School District
Rim of the World
Sales Price
$319,000

Downloads

31920 Pine Cone

Schedule a Tour

I would love to help you see this beautiful home! As a full-service brokerage, we can help you tour. Please submit an offer, and answer questions about the buying process.

Thank you

for your interest in 31920 Pine Cone Drive, Running Springs, CA 92382

31920 Pine Cone
Navigate

Mortgage Calculator

Estimate your monthly mortgage payment, including the principal and interest, property taxes, and HOA. Adjust the values to generate a more accurate rate.
$0,000 Your Payment 20 15 65
$0,000 Your Payment

I'm Interested In

31920 Pine Cone

or
  • CallAngela Brown

    License #01922018

    714-322-5553
  • Follow Us On Instagram